Praha 2, Anny Letenské 937/12
byt č. 122
Cena
36.000 Kč / měsíc
Popis
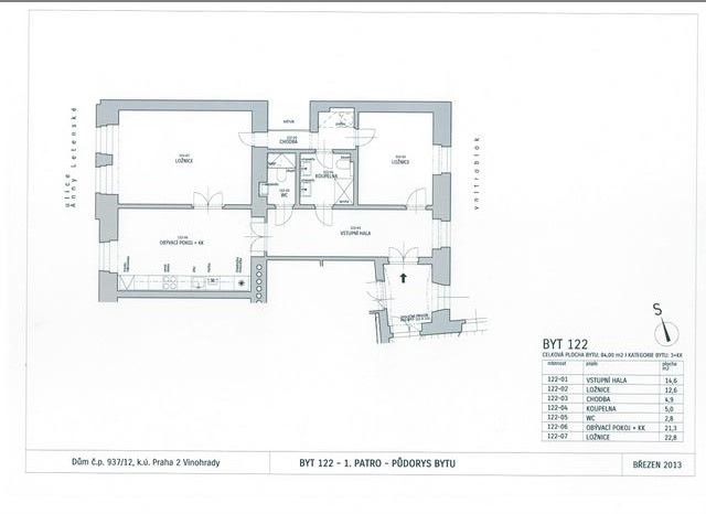
Příjemný nezařízený byt. Parkety, vysoké stropy, vybavená kuch. linka. 1.patro - výtah. Volný od listopadu 2025.
Velikost | 2+1, (3kk) 84 m2 |
---|---|
Lokalita | Praha 2, Anny Letenské 937/12 byt č. 122 |
Poznámka |
Hana Brátová
03.10.2025